БЫСТРОВОЗВОДИМЫЕ ЗДАНИЯ

мы предлагаем следующие Виды зданий

Выставочные сооружения

Современные стальные здания
практически для всех видов торговли
и сферы услуг

Логистические центры

Мы понимаем, как важно иметь хорошо функционирующие логистические
решения

Производственные Здания

Надежные сооружения для построения отлаженного процесса
производства

Преимущества наших систем

Технологичность

Умные каркасные системы, а также сочетание стандарта с неограниченными возможностями по трансформации

Низкие ценовые параметры

Дешевый фундамент, низкие затраты на несущий каркас, невысокая себестоимость утепления, небольшие эксплуатационные расходы

Высочайшее качество

Наши строительные решения — это всегда надежность, основательность, устойчивость и долговечность

ТОЛЬКО У нас

Цвета, материалы, а также

другие дополнительные опции адаптируются к вашему корпоративному стилю

РАЗЛИЧНЫЕ ТИПЫ КОНСТРУКЦИЙ

МЫ ЛУЧШИЕ В ТОМ, ЧТО ДЕЛАЕМ

Наша мануфактура  поможет построить уникальные торговые помещения, офисы, склады, мастерские и многое другое. Компания обладает большим опытом в возведении сооружений подобного типа. Это значит, что процесс будет быстрым и чётким, с качественным результатом. Не только на бумаге, но и на практике.

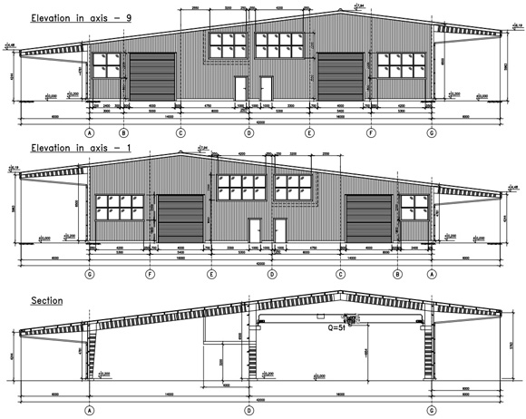
На фото: Проект двухпролетного здания с кран-балкой и подвесной антресолью для производственных и складских помещений с безопорными навесами шириной 6 м по всей длине здания. Утепление полистовое.

Виды утепления наших систем

Полистовая сборка

Плюсом такой технологии является
её низкая стоимость и возможность поэтапного применения

Сэндвич-панели

Утепление производится с использованием готовых клееных сэндвич-панелей

Неутепленные здания

Самые "быстрый" вариант сооружения.
Утепление не производится, сроки возведения минимальные

ТОЛЬКО в сентябре

Скидка 10%

при заказе утепления полистовой сборки


Преимущества работы с нами

Многолетний ОПЫТ

Основанная в 1971 году, компания смогла изменить взгляд отрасли на то, чем может стать металлическая конструкция

Надежность

Нам доверяют предприятия из разных секторов экономики

Качество

Надежные решения для надежной работы. Мы гарантируем высочайший уровень выполнения проектов.

Большие возможности

Обладаем производственными
мощностями для реализации проектов любой сложности

практика нестандартных решений

Выпуск модификаций по индивидуальным чертежам, но в соответствии со всеми нормами

Инновации

Наличие собственного конструкторско-технологического подразделения

Получить полный каталог с ценами

Наши ключевые партнеры